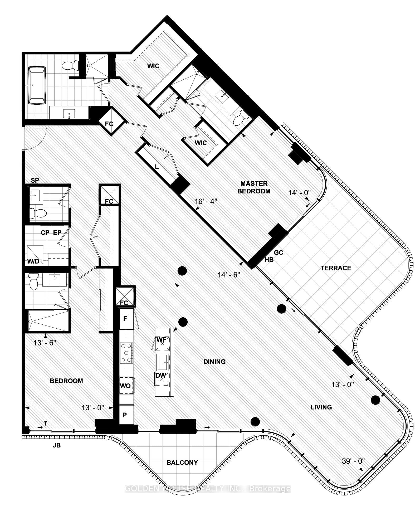
Unit 1222
155 Merchants' Wharf·Toronto·M5A 0Y4

+20more
$10,500/mo
2 beds · 4 baths
Beds2
Baths4
Sqft2250-2499
Parking2
Full Listing Details Locked
Register once to unlock the full description, all 25 photos, days on market, maintenance fees, taxes, and more — across every listing at Aqualuna Condos.



